Beleuchtungserweiterung sirius X6 + 2x X4

Hier geht es um das wichtige Thema Beleuchtung und Beleuchtungstechnik
sheriff_80
Beiträge: 186
Registriert: Dienstag 23. Februar 2016, 19:38
Wohnort: österreich

Beleuchtungserweiterung sirius X6 + 2x X4

Beitrag von sheriff_80 »

Hallo Leute,

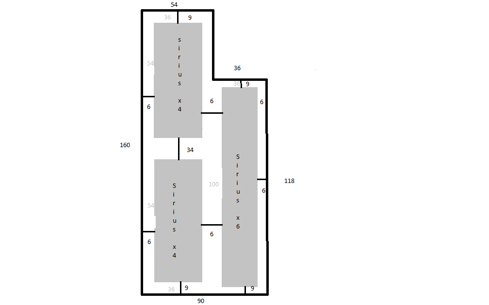
ich möchte euch hier mal um Rat fragen wie ich meine Beleuchtungserweiterung des Beckens machen soll, und zwar wird mein kleiner Ozean momentan mit einer ATI Sirius X6 beleuchtet. Da meine Korallenstöcke aber mittlerweile alle ziemliche Brummer sind, schatten sich diese schon recht ordentlich ab,daher möchte ich die vorhandene X6 mit 2 stück X4ern erweitern.

anbei mal ne schnelle Skizze wie ich mir das ganze so vorstelle....
Unbenannt.png

nun zu meiner Frage.... würdet ihr die Leuchten anders verteilen? zwischen den x4ern weniger Abstand dafür außen zum Beckenrand mehr Abstand?

und meine jetzige x6 läuft bei Tagesmaximum auf 85% Leistung, soll ich die Leistung dann für alle Lampen zurücknehmen?? Die theoretische Beleuchtungsstärke wird mit der Erweiterung ja mehr als verdoppelt und wenn ja (wovon ich mal stark ausgehe) auf wieviel Prozent?
Der Wasserstand im Becken beträgt übrigens gute 78 cm und die Leuchten hängen ca 20 cm über der Wasseroberfläche....

Mfg Stefan
hypocampo

Re: Beleuchtungserweiterung sirius X6 + 2x X4

Beitrag von hypocampo »

Hallo Stefan
Die Aufteilung macht Sinn. Die Lange Sirus ist aber schon Breiter im Verhältnis zu den anderen oder?
Da der Abstand zum Beckenrand eher eng ist wirst du einiges an Licht durch die Scheibe schicken...
Sicher wirst Du zu Beginn die Leistung reduzieren müssen.... aber das wird sich dann ergeben.
sheriff_80
Beiträge: 186
Registriert: Dienstag 23. Februar 2016, 19:38
Wohnort: österreich

Re: Beleuchtungserweiterung sirius X6 + 2x X4

Beitrag von sheriff_80 »

Hey, die lange sirius (x6)ist genauso breit wie die kurzen (x4) die zeichnung ist nur leider alles nur nicht maßstabsgetreu oder im richtigen größenverältniss.

Hab auch schun gedacht die leichten leicht schräg aufzuhängen damit sie eher zur mitte des beckens strahlen, denke da sollten einige wenige gead schun ausreichen um nicht soviel licht nach außen durch die scheiben zu schicken und mein teilweiser doch sehr hoher aufbau würde auch ordentlich licht abbekommen das ein wenig seitlich auftrifft und somit dann auch der abschattung entgegenwirkt die meine großen stöcke beim licht das direkt von oben kommt verursachen

Mfg stefan
Benutzeravatar
Christian86
Beiträge: 1490
Registriert: Freitag 5. Februar 2016, 01:27
Wohnort: D-04626 Schmölln

Re: Beleuchtungserweiterung sirius X6 + 2x X4

Beitrag von Christian86 »

Hi Steffan,

Ich finde das ein bisschen übertrieben viel Leistung.
Du hast ja mit der x6 offensichtlich genug Leistung im Becken das deine Korallen gut wachsen.
Wenn es dir um die bessere Ausleuchtung geht würde ich hier mit zusätzlichen T5 Balken arbeiten welche nicht nur besser ausleuchten sondern auch das Spektrum der Sirius optimal ergänzen.
Preislich sparst du da natürlich auch eine ganze Menge.
Ich finde 2x290 und 1x 480 Watt LED Leistung für übertrieben.
Das sind ja fast 1000 Watt LED!!!!
Außerdem leuchtest du mit den Clustern wieder nicht flächig aus.

Ich würde die x6 mittig über das Becken hängen und auf die 118cm Länge mit 54 Watt T5 Balken und auf der 160cm Länge mit 80 Watt T5 Balken arbeiten.
Wenn du jeweils 2 Stück von den 54ern und 80ern nimmst sollte das schon ordentlich ausleuchten.

Wenn es unbedingt nur LED sein soll würde ich eine Flächige DIY Lösung für dein Becken am besten finden.
sheriff_80
Beiträge: 186
Registriert: Dienstag 23. Februar 2016, 19:38
Wohnort: österreich

Re: Beleuchtungserweiterung sirius X6 + 2x X4

Beitrag von sheriff_80 »

Hey christian,

Ja an an die ergänzung mit den von dir genannten röhren hab ich auch schun gedacht, was mich daran ein wenig stört ist die DIY optik dann mit den balken und den zusätzlichen kabeln für Spannung und dimmung, abgesehen davon bin ich mit der LED performance der sirius vollkommen zufrieden und da ich die x4 er bereits habe und diese auch noch zu einem unglaublichen schnäppchenpreis bekommen habe wirds zu der lösung mit sirius leuchten kommen. Nur weil ich dann fast 1000w led power zur verfügung habe muss ich die ja nicht aussnutzen....

Mfg stefan
Benutzeravatar
Christian86
Beiträge: 1490
Registriert: Freitag 5. Februar 2016, 01:27
Wohnort: D-04626 Schmölln

Re: Beleuchtungserweiterung sirius X6 + 2x X4

Beitrag von Christian86 »

Hey Stefan,

Na gut wenn du die beiden x4 schon hast ist das natürlich auch was anderes.
Da würde ich diese auch nutzen.
Aus jedenfall hast du mit der Beleuchtung genug Reserven nach oben :-)
Ich hatte mal eine Sirius mit der ich auch zufrieden war.
Außer halt die Sache mit der Ausleuchtung.

Bei den T5 könnte man sich ja eine Aufhängung aus Aluprofilen bauen in der man die Sirius mit integrieren könnte.
sheriff_80
Beiträge: 186
Registriert: Dienstag 23. Februar 2016, 19:38
Wohnort: österreich

Re: Beleuchtungserweiterung sirius X6 + 2x X4

Beitrag von sheriff_80 »

Hey,

Ja reserven sind da noch genügend nach oben....

Ja mal sehen wie das wird mit der ausleuchtung....sollte aber denke ich ganz ordentlich werden da die cluster der leuchten ja übers gesammtw becken gleichmäßig verteilt sind.... und nicht nur mehr mittig wie bis jetzt mit meiner x6....wobei die ausleuchtung da auch schun ganz beachtlich ist wenn mann bedenkt wie groß das becken ist und es "nur" eine x6 war, abgesehn davon denke ich werde ich die leuchten ja auch schräg aufhängen sodass die lampen ein "ein wenig nach innen" zeigen.... und es so noch zu besserer ausleuchtung kommen sollte....

Mfg stefan
Benutzeravatar
Christian86
Beiträge: 1490
Registriert: Freitag 5. Februar 2016, 01:27
Wohnort: D-04626 Schmölln

Re: Beleuchtungserweiterung sirius X6 + 2x X4

Beitrag von Christian86 »

Die Neigung der Lampen zur Beckenmitte halte ich auch für sinnvoll.
Die äußeren Cluster die sich an den Scheiben befinden könnte man ja mit weniger Leistung als die inneren fahren damit wie Dani schon sagte nicht soviel Licht nach außen verloren geht.
sheriff_80
Beiträge: 186
Registriert: Dienstag 23. Februar 2016, 19:38
Wohnort: österreich

Re: Beleuchtungserweiterung sirius X6 + 2x X4

Beitrag von sheriff_80 »

Hey,
Ja das mit den äußeren clustern auf weniger leistung wäre auch so ne idee danke für den tipp.

Stellt sich nur noch die frage mit wieviel leistung ich da nach der umstellung/erweiterung fahren soll.... momentan läuft meine x6 bei tagesmax auf 85%

Mfg stefan
Benutzeravatar
Christian86
Beiträge: 1490
Registriert: Freitag 5. Februar 2016, 01:27
Wohnort: D-04626 Schmölln

Re: Beleuchtungserweiterung sirius X6 + 2x X4

Beitrag von Christian86 »

Vom Gefühl her würde ich erstmal so bei 50-55% anfangen.

Der Vorteil ist das deine Korallen schon an das Sirius Licht gewöhnt sind.
Antworten